1003
A lake house with prow gables that rise in a sharp, triangular form toward the water. Its expansive windows wrap the façade to flood the interior with light and provide uninterrupted views of your lot.









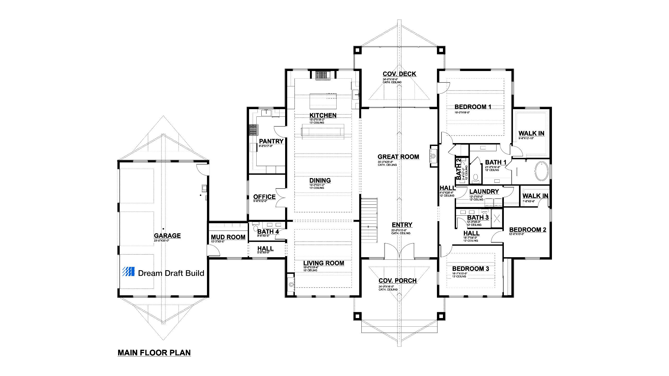
Floor Plans
A well-designed house plan organizes living, sleeping, and utility spaces into a functional layout that balances comfort, flow, and privacy.


Specifications
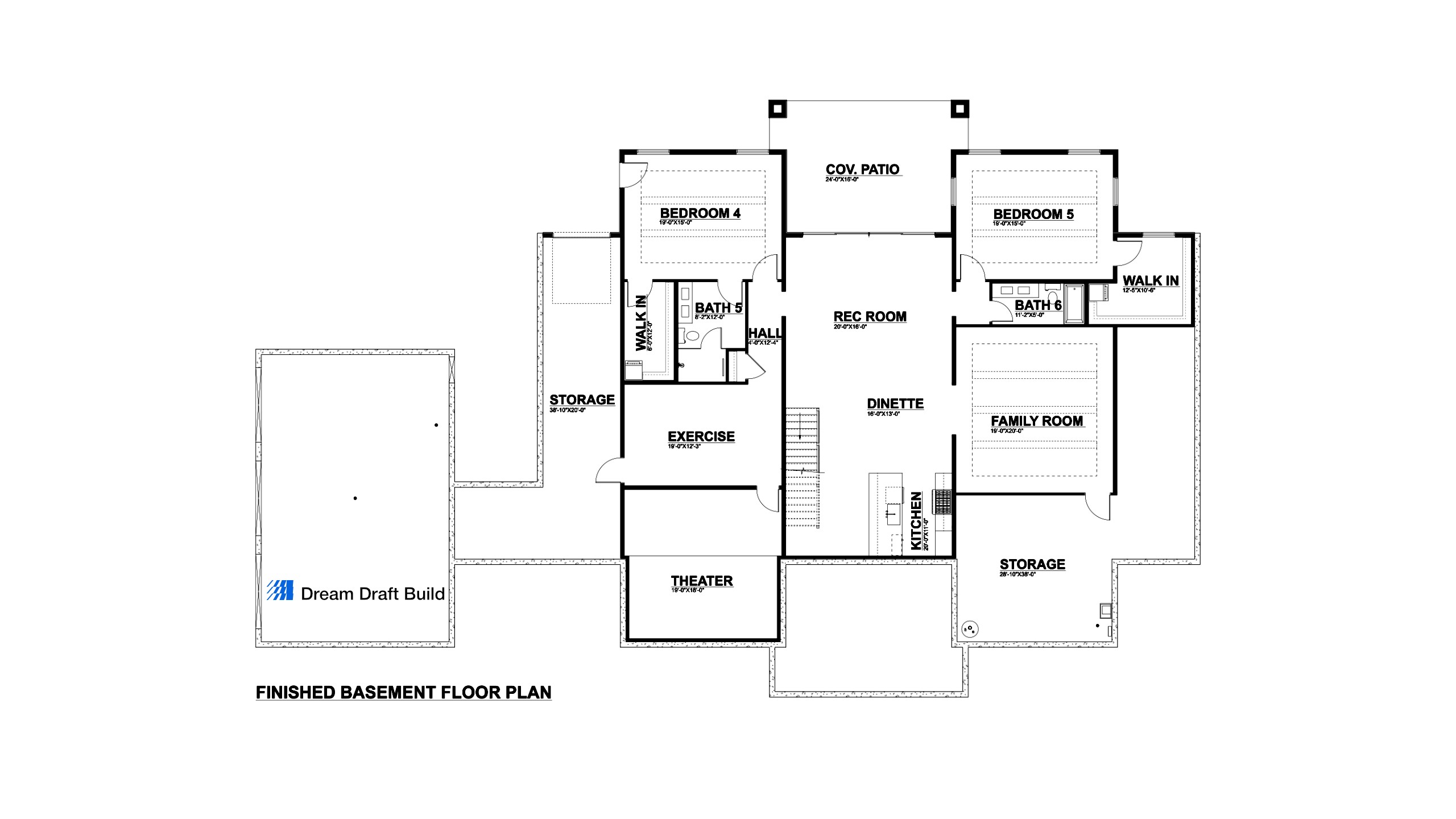
This expansive 5,655 total square foot lake house blends scale with thoughtful design. Spanning 114 feet in width and 72 feet in depth, the home makes a strong architectural statement with steep 14/12 prow gables, accented by standing seam metal that catches the light throughout the day. A 10 foot tall walkout foundation opens the lower level to the landscape, offering the option for a fully finished basement that flows seamlessly outdoors. Built with 2x6 exterior walls for durability and efficiency, the structure balances strength with refined detail, while 3 spacious garage bays provide both convenience and storage.
Inside, the main level features 10 foot ceilings that expand into a dramatic central living space crowned by soaring cathedral ceilings, creating a bright and airy gathering area. The home includes 5 bedrooms and 6 bathrooms, designed for both privacy and comfort. Multiple kitchens, complemented by a well-appointed butler’s pantry, make it ideal for entertaining or hosting extended family. Every element is designed to support a lifestyle centered around the lake, from large gathering spaces to quiet retreats, all framed by architecture that emphasizes height, light, and connection to the outdoors.
